Erstbezug: Villa in Strandnähe Cala Romantica
Erstbezug: Villa in Strandnähe Cala Romantica
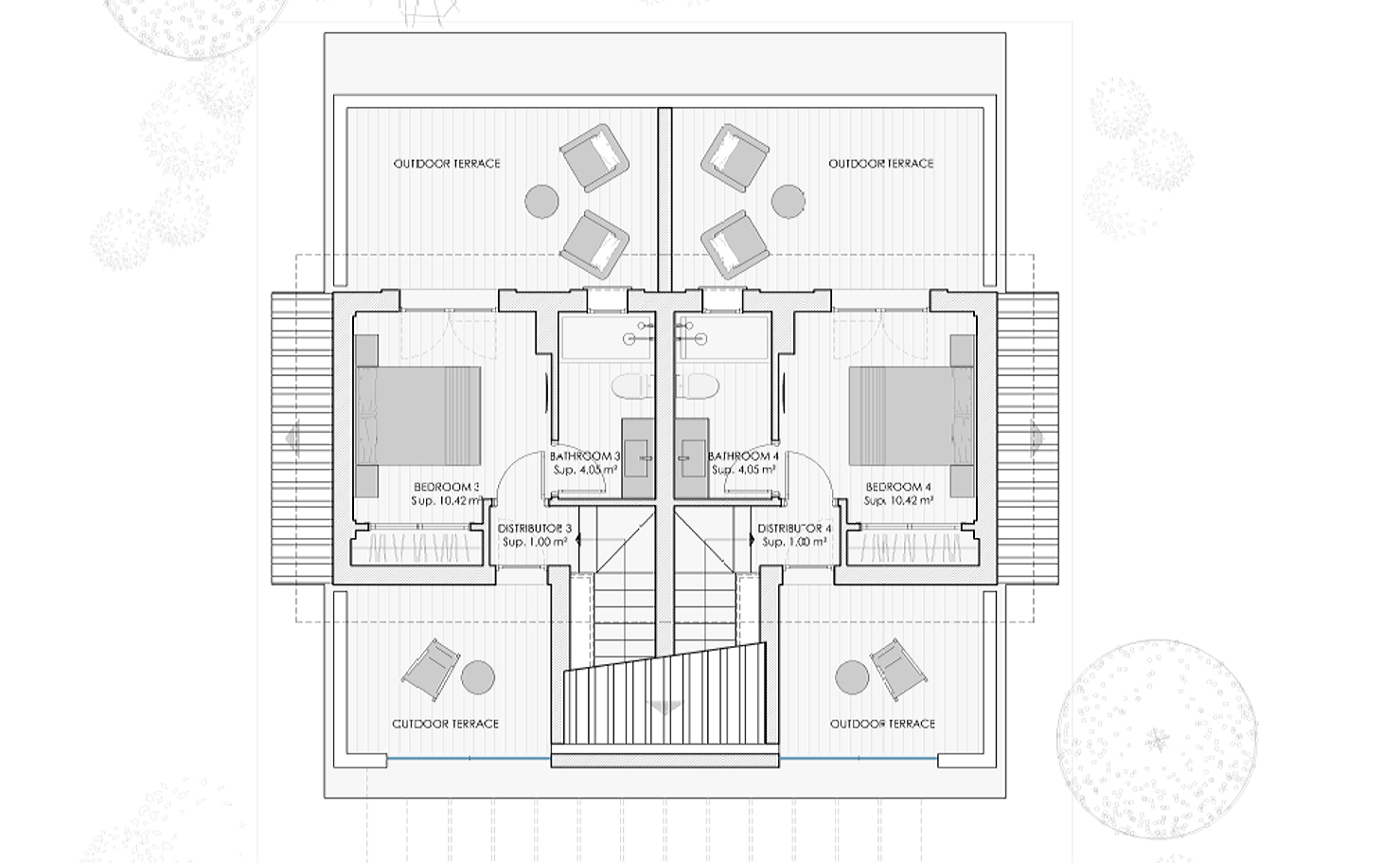
Diese schöne Villa in Cala Romantica im Osten von Mallorca wurde auf einem Grundstück von 720 m2 erbaut und gehört zur Gemeinschaft der Residenz SUNRISE BAY RESIDNECES“ mit insgesmt 159 Doppelhaushälften und freistehenden Ville. Bei einer Wohnfläche von 150 n2 verfügt die Villa im unteren Hauptwohnbereich über das Wohn-/Esszimmer, eine voll ausgestattete Küche, einen Office-Bereich, einen Stauraum und einen Hauswirtschaftsbereich, sowie zwei Schlafzimmer jeweils mit Badezimmer en Suite. Im Obergeschoss bietet das Haus zwei weiteree Doppelschlafzimmer mit Badezimmer en Suite und Zugang zu je einer privaten Terrasse. Der private Gartenanteil beträgt 535 m2. Zwei private Pkw-Stellplätze und insgesamt 89 m2 Terrassenflächen runden das Angebot ab.
Die Übergabe der Häuser ist für den Sommer 2026 geplant. Ein Show-Haus steht zur Verfügung!
Die in der Foto-Galerie dargestellten Bilder zeigen wie folgt:
•Fotos (Originalzustand) : 002,004,005,007,009,0011,0012
•Fotos (KI-generiert) : 001,003,006,008,0010
•3D-Ansichten: Bilder 0014-0024
•Fotos 0025 & 0026 : Strand „Cala S`Estany d`en Mas“/Cala Romantica
•Bilder 0027 & 0028 : Grundriss Erdgeschoss & Grundriss Obergeschoss
Hier geht’s direkt zur virtuellen Tour des Haustyps B+ – VIRTUELLE TOUR
Details:
•Doppelt verglaste Aluminiumfenster (mit Luftkammer für eine erhöhte Energieeffizienz)
•Sicherheitszugangstür
•Innentüren weiß lackiert
•Einbauschränke weiß lackiert
•Laminatfußboden
•rutschfeste Fliesen im Außenbereich
•moderne Bäder mit hochwertigen Armaturen
•Klimaanlage warm/kalt
•voll ausgestatte Küche mit Kühlschrank, Dunstabzugshaube, Induktionskochfeld, Backofen/Mikrowelle, Geschirrspüler (Bosch, Siemens oder ähnlich)
•Hauswirtschaftsbereich
•Abstellraum
•Glasfaseranschluss für Internet
•4 x Gemeinschafts-Swimming-Pool
•2 x privater Pkw-Stellplatz
SERVICE CENTER mit:
•RELAX AREA mit Indoor-Entspannungsbereich mit Schwimmbad, Sauna, Hydromassage, Umkleideräumen mit Duschen und Toiletten.
•Fitnessraum, ausgestattet mit Sportgeräten, Musikanlage und Fernseher.
•Mehrzweck-Gemeinschaftsraum
•Gastro-Bar mit Aufenthaltsbereich und Küche
Beschreibung der Residenz:
Die Neubau-Residenz SUNRISE BAY RESIDENCES wird im Osten Mallorca in Cala Romantica erbaut und ist eine exklusive Wohnanlage mit 159 Doppelhaushälften und freistehenden Villen. Sie bietet Wohlbefinden und Komfort und ist ein idealer Ort, um den mediterranen Lebensstil Mallorca´s zu leben und zu spüren. Villen und Doppelhaushälften verschiedener Typologien mit 2, 3 und 4 Schlafzimmern, 75 m2 bis 150 m2 Wohnflächen, alle mit Außenparkplatz, Garten, Pergola und Terrasse.
Das Spa im Innen- und Außenbereich und der voll ausgestattete Fitnessraum helfen Ihnen, einen gesunden Lebensstil zu führen. Die Umgebung wurde so gestaltet, dass Sie abschalten, entspannen und sich verwöhnen lassen können. Die Gemeinschaft verfügt auch über ein privates Kino, eine Gastro-Bar und einen sozialen Raum, in dem Sie mit Freunden, Familie und Nachbarn Zeit verbringen können.
SUNRISE BAY RESIDENCES bietet das perfekte Gleichgewicht zwischen Komfort, Freizeit und Ruhe. Zum internationalen Flughafen von Mallorca gelangt man in ca. 50 Fahrminuten und in das Stadtzentrum von Palma de Mallorca in ca. 1 Std. Fahrzeit mit dem Pkw. Mallorca`s zweitgrösste Stadt Manacor erreicht man in nur ca. 20 Fahrminuten. Unzählige wunderschöne Badebuchten und Strände der Ostküste befinden sich ebenso in unmittelbarer Nähe, wie einige Yachthäfen, Tennis-Clubs und Golfplätze. Nur 5 Minuten von der Residenz entfernt befindet sich der schöne Strand „Estany d`en Mas“.
