Moderne Luxusvilla – Santa Ponsa
Moderne Luxusvilla – Santa Ponsa
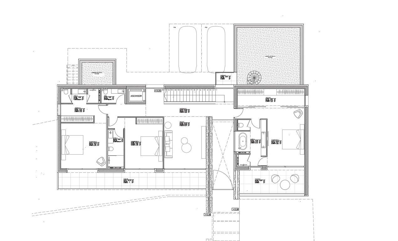
Diese im Jahre 2025 auf einem 1.322 m2 Grundstück unter Verwendung hochwertige Bau- und Ausstattungsmaterialien erbaute Luxus-Villa in Santa Ponsa mit einer Fläche von 731 m2 beeindruckt bereits beim Zugang durch eine 6 Meter hohe Eingangsür die in den Hauptwohnbereich übergeht, wo sich das Wohnzimmer mit Kamin, ein schöner Essbereich mit einer offenen Luxusküche mit Kochinsel und einer anliegenden Service-Küche befinden. Auf dieser Ebene befindet sich ebenso ein Gästezimmer mit Badzimmer en Suite und ein Büro. Auf der oberen Wohnebene befinden sich das Hauptschlafzimmer mit Badezimmer en Suite, Ankleide und eigener Terrasse, zwei weitere Schlafzimmer mit Badezimmer en Suite, ein weiterer kleiner Wohnbereich (z.B. TV-Bereich) und eine Gäste-Toilette. Im Untergeschoss stehen ein imposanter Spa-Bereich mit Sauna & Hammam, einem Fitnessraum, einem Indoor-Swimming-Pool und einem Kinoraum zur Verfügung. Ein Fahrstuhl verbindet alle Wohnebenen miteinander! Ein enorme Dachterrasse, Parkmöglichkeiten für mehrere Pkw und Carport, weiträumige offene und überdachte Terrassen und ein Swimming-Pool, eingebettet in einen schönen Garten mit
automatischer Bewässerung, runden das Angebot ab.
Austattungsmerkmale & Details:
Voll ausgestattete Neolith-Designerküche mit Miele-Geräten, Büro, 2. Wohnzimmer, Gäste-Toilette, doppelt verglaste Fenster, Einbauschränke, Kiimaanlage, inteligente Haustechnik, SAT TV, Kamin, Fußbodenheizung, Esszimmer,Badezimmer mit Armaturen von Gessi, Antonio Lupi und Sanitäranlagen von Villeroy & Boch, Wellnessbereich mit Sauna, Hammam und Fitnessraum, Kinoraum, weiträumige überdachte und freie Terrassen, Garten mit automatischer Bewässerung, 40 m² Infinity-Pool mit Whirlpool, KNX-Hausautomationssystem, Pkw-Stellplatz & Carport.
Santa Ponsa, als einer der beliebtesten Urlaubsorte auf Mallorca mit herrlichen Sandstrand, bietet in seiner Umgebung entsprechend alle wichtigen Annehmlichkeiten, wie Bars, Restaurants, Supermärkte, Shops, Boutiquen etc. Den Yachtclub Club Nautico Santa Ponsa finden Sie ebenfalls in unmittelbarer Nähe. Im nahegelegenen Gebiet „Nova Santa Ponsa“ mit den drei Golfplätzen Santa Ponsa I, II & III und dem Yachthafen Port Adriano mit seiner anliegenden Sandbadebucht bieten sich zahlreiche Freizeitmöglichkeiten. In Nova Santa Ponca befinden sich wunderbare Villen-Viertel und diverse beliebte Luxus-Residenzen direkt am Golfplatz und Wohnanlagen in erster Linie zum Meer. Ebenfalls nicht weit entfernt befinden sich zudem einige internationale Schulen, der Western Water Park Magaluf, das Marineland Costa D`en Blanes und einige beliebte Beach Clubs.
